ID CP3061496

INCHIERE SPATIU P+1 | ZONA POPESTI LEORDENI

ID CP3061496

3,500 €

Spațiu comercial de închiriat
Sud-Est, Popesti-Leordeni
448 mp
2020

Reos Group va propune spre inchiriere un spațiu generos în zona Popești-Leordeni, cu o suprafață totală de 485 mp, dispus pe parter și etaj, ideal pentru activități de birouri, clinică, showroom, afterschool sau alte tipuri de business.

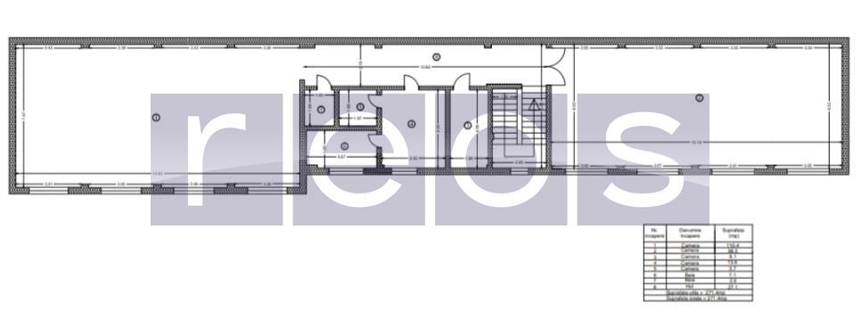
Imobilul este compartimentat în 7 camere și oferă un mix echilibrat între zone open space și încăperi individuale, adaptabil nevoilor diverse.

Parterul are o suprafață utilă de 176 mp și include o cameră open space de 97 mp, ideală pentru recepție, zonă de lucru comună sau prezentare, completată de încă o cameră separată și o baie.

Etajul, cu o suprafață utilă de 272 mp, dispune de două spații open space generoase, de 110 mp și 99 mp, potrivite pentru activități care necesită suprafețe largi și flexibile, precum și de alte 3 camere ce pot fi utilizate ca birouri individuale sau săli de ședință si 2 bai.

Spațiul beneficiază de o compartimentare eficientă, lumină naturală și acces facil, fiind amplasat într-o zonă în plină dezvoltare, cu potențial ridicat pentru diverse activități comerciale sau profesionale.

Avans: 1 luna+ 2 luni garantie.

Pentru mai multe detalii, nu ezitati sa ne contactati.

Citește mai mult

  • Tip imobil
    Clădire birouri
  • Etaj
    Parter, 1
  • Număr camere
    7
  • Număr băi
    3
  • Suprafață utilă
    448 mp
  • Disponibilitate
    Imediat
  • Compartimentare spațiu
    Parțial compartimentat
  • An construcție
    2020
  • Construcție nouă
    Da
  • Număr etaje clădire
    1

Facilități

Apă
Canalizare
Curent
Gaz
Stefania Gheorghe - REOS Group
Stefania Gheorghe
Associated Broker

0791710083


Solicită chiar acum o vizionare
Telefon
Sună acum Solicită vizionare
Necesare:

Site-ul nu poate funcționa corect fără aceste cookie-uri. Vezi cookie-urile

Statistică:

Strângem statistici anonime despre voi, vizitatorii unici, pentru a vă îmbunătăți experiența dumneavoastră. Vezi cookie-urile

Marketing:

Pentru a ne promova mai eficient serviciile noastre, folosim cookies pentru a vă identifica și a vă oferi proprietăți și servicii personalizate. Vezi cookie-urile

Acest site folosește cookies, află detalii. Alege ce tipuri de cookies dorești să permitem: