ID CP3047389

VANZARE- DUPLEX - DOROBANTI- 4 CAMERE- P+2+M - LIFT- NZEB-2024

ID CP3047389

790,000 €

Apartament cu 4 camere de vânzare
Dorobanti, Bucuresti
122 mp
2019

REOS Group Imobiliare propune spre vânzare un duplex de excepție situat în zona Dorobanți, într-un imobil boutique finalizat în 2025, conceput pentru un stil de viață rafinat și confort contemporan.

Amplasat pe o stradă liniștită, cu trafic redus, acest apartament se remarcă printr-un concept rar întâlnit: intimitate, acces direct din lift în locuință și o clădire cu doar 3 unități locative.

Proprietatea îmbină armonios eleganța cu funcționalitatea, oferind spații generoase, lumină naturală din abundență și o curte proprie de 50 mp, un adevărat refugiu urban. În plus, apartamentul beneficiază de două locuri de parcare, un avantaj esențial în această zonă.

Imobilul este construit la standard nZEB (near Zero Energy Building), ceea ce se traduce prin eficiență energetică ridicată și costuri de întreținere reduse, fără compromisuri în ceea ce privește confortul.

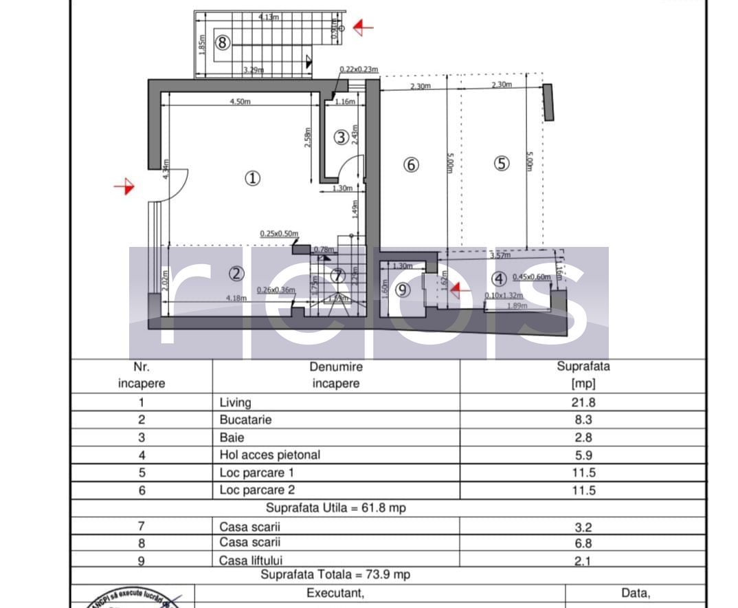
Compartimentare:

Parter:

- Living generos cu zonă de dining și bucătărie

- Baie

- Acces direct către curtea proprie (50 mp)

Etaj 1:

- Dormitor matrimonial cu baie proprie și acces la terasă

- Două dormitoare secundare, fiecare cu acces către a doua terasă

- Baie suplimentară

Specificații tehnice și finisaje premium:

- Sistem de încălzire cu pompă de căldură Nibe (Suedia)

- Incălzire în pardoseală Henco Floor (Belgia)

- Răcire prin ventiloconvectoare

- Tâmplărie aluminiu Reynaers, cu geam tripan pentru izolare termică și fonică superioară

- Termoizolație performantă cu vată minerală Rockwool (15–20 cm)

- Fațadă ventilată din pin nordic Lunawood – Holver

- Compartimentare interioară realizată integral din cărămidă + tencuială

- Uși filomuro (design minimalist, integrate în perete, inclusiv acces lift)

- Terase finisate cu deck din frasin termotratat

Alte avantaje:

- Imobil boutique P+2E+M cu doar 3 unități

- Acces privat din lift direct în apartament

- Două terase + curte proprie generoasă

- Două locuri de parcare incluse

- Documentație completă a construcției (fișe tehnice, etape foto/video, lucrări ascunse)

- Garanție din partea constructorului

În spatele designului elegant se află o construcție realizată cu o atenție excepțională la detalii, folosind materiale premium și soluții tehnice de ultimă generație.

Fiecare element al proiectului a fost ales pentru a oferi durabilitate, eficiență și un nivel ridicat de confort, ceea ce poziționează această proprietate într-o categorie distinctă pe piață.

- Această locuință este ideală pentru cei care caută un spațiu exclusivist, bine gândit, într-una dintre cele mai dorite zone ale orașului.

- O vizionare vă poate convinge că este alegerea ideală pentru un stil de viață exclusivist, chiar în centrul Bucureștiului.

- Agenția noastră va poate oferi consultanta bancara gratuita pentru obținerea unui credit ipotecar/noua casa sau pentru alte informații bancare .

Pentru mai multe detalii sau programarea unei vizionări, vă rog să mă contactați.

Citește mai mult

  • Tip apartament
    Apartament
  • Compartimentare
    Decomandat
  • Număr camere
    4
  • Dormitoare
    3
  • Număr bucătării
    1
  • Număr băi
    3
  • Geam la baie
    Da
  • Etaj
    Parter, 1
  • Suprafață utilă
    122 mp
  • Suprafață totală
    166.5 mp
  • Disponibilitate
    Imediat
  • Confort
    Lux
  • Stare interior
    Finisat modern
  • Număr balcoane
    2
  • Număr terase
    1
  • Număr locuri parcare
    2
  • Imobil
    Bloc de apart.
  • Stadiu construcție
    Finalizată
  • An construcție
    2019
  • Construcție nouă
    Da
  • Tip construcție
    Beton
  • Număr etaje clădire
    3

Facilități

Acces pentru persoane cu dizabilități
Aer condiționat
Apă
Apometre
Bucătărie deschisă
Canalizare
CATV
Curent
Faianță
Gaz
Geamuri termopan
Gresie
Iluminat stradal
Încălzire prin pardoseală
Internet
Izolație exterioară
Mijloace de transport în comun
Nemobilat
Parcare deschisă
Parchet
Pompă de căldură
Străzi asfaltate
Supraveghere video
Telefon
Ușă intrare metal
Uși interior MDF
Vopsea lavabilă
Cristiana Gheorghe - REOS Group
Cristiana Gheorghe
Senior Broker

0791710078


Solicită chiar acum o vizionare
Telefon
Sună acum Solicită vizionare
Necesare:

Site-ul nu poate funcționa corect fără aceste cookie-uri. Vezi cookie-urile

Statistică:

Strângem statistici anonime despre voi, vizitatorii unici, pentru a vă îmbunătăți experiența dumneavoastră. Vezi cookie-urile

Marketing:

Pentru a ne promova mai eficient serviciile noastre, folosim cookies pentru a vă identifica și a vă oferi proprietăți și servicii personalizate. Vezi cookie-urile

Acest site folosește cookies, află detalii. Alege ce tipuri de cookies dorești să permitem: