ID CP2133993

VANZARE 2 CAMERE | DOROBANTI | 65 MP | PRETABIL REZIDENTIAL-COMERCIAL

Această proprietate nu mai este activă,
te invităm să vizualizezi proprietăți similare

ID CP2133993

159,000 €

Apartament cu 2 camere de vânzare
Dorobanti, Bucuresti
65 mp
1937

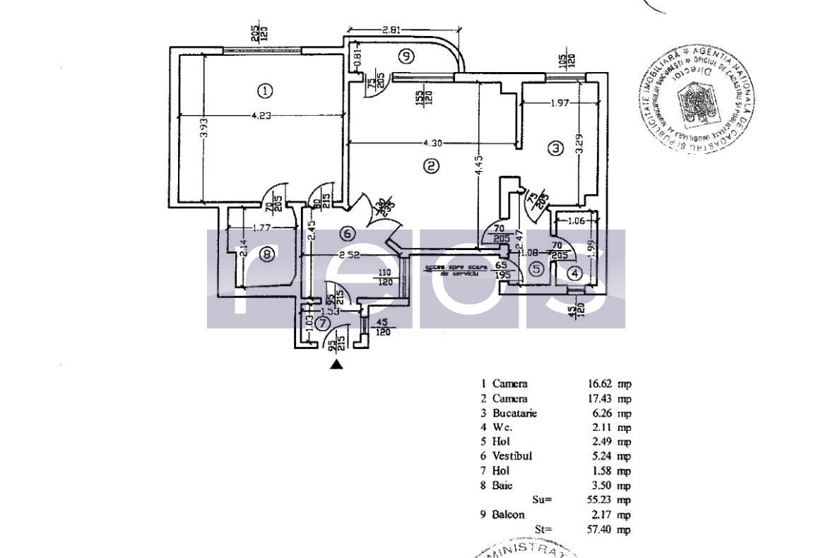
Reos Group va propune spre vanzare un apartament cu 2 camere, luminos și recent renovat, situat pe Calea Dorobanților, în apropierea Ambasadei Turciei. Apartamentul se află la etajul 1 al unei clădiri interbelice în stil Art Deco, cu două etaje (P+2) și curte interioară.

Compartimentarea include un living spațios cu bucătărie deschisă, un dormitor generos, baie modernă cu duș walk-in și o a treia cameră amenajată ca birou (se poate reamenaja în baie, având instalații necesare). De asemenea, apartamentul are un hol mare și două balcoane. Beneficiază de încălzire prin centrală proprie pe gaz, aer condiționat în living și dormitor, parchet masiv și contor individual pentru apă. Vederea este mixtă, atât spre stradă, cât și spre curtea interioară.

Apartamentul a fost folosit atât ca locuință, cât și ca spațiu de birouri, fiind potrivit pentru cabinet notarial, de avocatură, mediere sau locuință. În trecut, a funcționat și ca birou de europarlamentar. Chiria estimată variază între 800 și 1.200 euro pe lună. Renovarea fațadei imobilului a fost deja inițiată în colaborare cu primăria, iar clădirea nu este încadrată în nicio categorie de risc seismic.

Citește mai mult

  • Tip apartament
    Apartament
  • Număr camere
    2
  • Dormitoare
    1
  • Număr băi
    1
  • Etaj
    1
  • Suprafață utilă
    65 mp
  • Suprafață construită
    78 mp
  • Disponibilitate
    Imediat
  • Imobil
    Bloc de apart.
  • An construcție
    1937
  • Număr etaje clădire
    2

Facilități

Aer condiționat
Apă
Bucătărie închisă
Bucătărie parțial mobilată
Cabină de duș
Canalizare
CATV
Centrală imobil
Curent
Faianță
Gaz
Gresie
Iluminat stradal
Interfon
Internet
Mijloace de transport în comun
Nemobilat
Parchet
Străzi asfaltate
Telefon
Ușă intrare lemn
Uși interior lemn
Vedere spre oraș
Vopsea lavabilă
Necesare:

Site-ul nu poate funcționa corect fără aceste cookie-uri. Vezi cookie-urile

Statistică:

Strângem statistici anonime despre voi, vizitatorii unici, pentru a vă îmbunătăți experiența dumneavoastră. Vezi cookie-urile

Marketing:

Pentru a ne promova mai eficient serviciile noastre, folosim cookies pentru a vă identifica și a vă oferi proprietăți și servicii personalizate. Vezi cookie-urile

Acest site folosește cookies, află detalii. Alege ce tipuri de cookies dorești să permitem: